Iris Street

Lakewood, Colorado

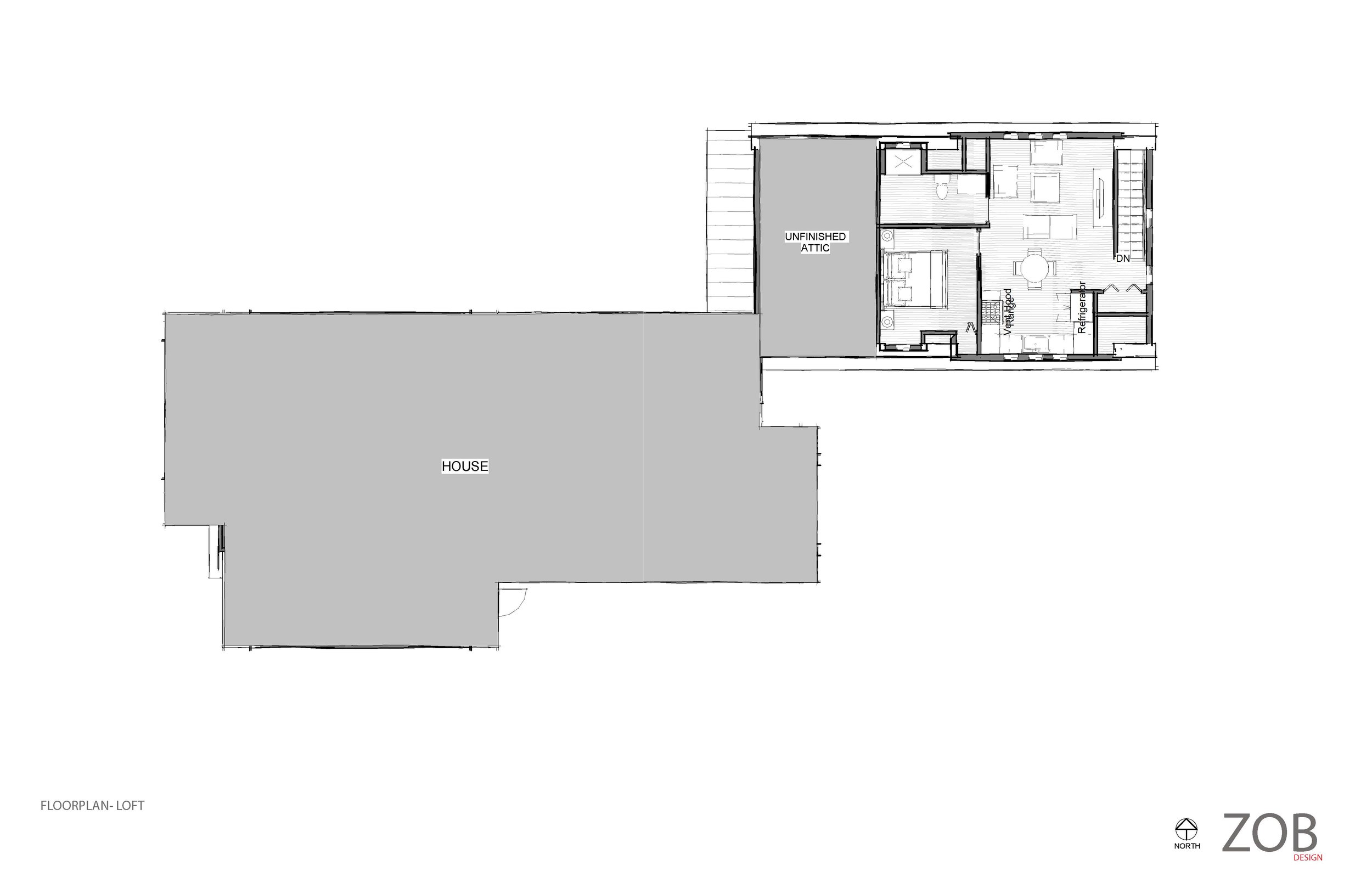
Single Family Home

Full interior gut remodel & addition

Goal: Transform this Farmhouse Tudor by bringing the outdoors in and maximizing the open views of the working flower farm. Additionally, the client requested an optimized floor plan for their growing family and asked for additional studio space to maximize the commercial aspect of their on-site family business.

In partnership with Douglas Construction, Anchor, E3 Power

Previous
Previous

Brown Squirrel Lane

Next
Next

Frontage Road