Pacific Coast Highway
Waldport, Oregon
Single Family Home
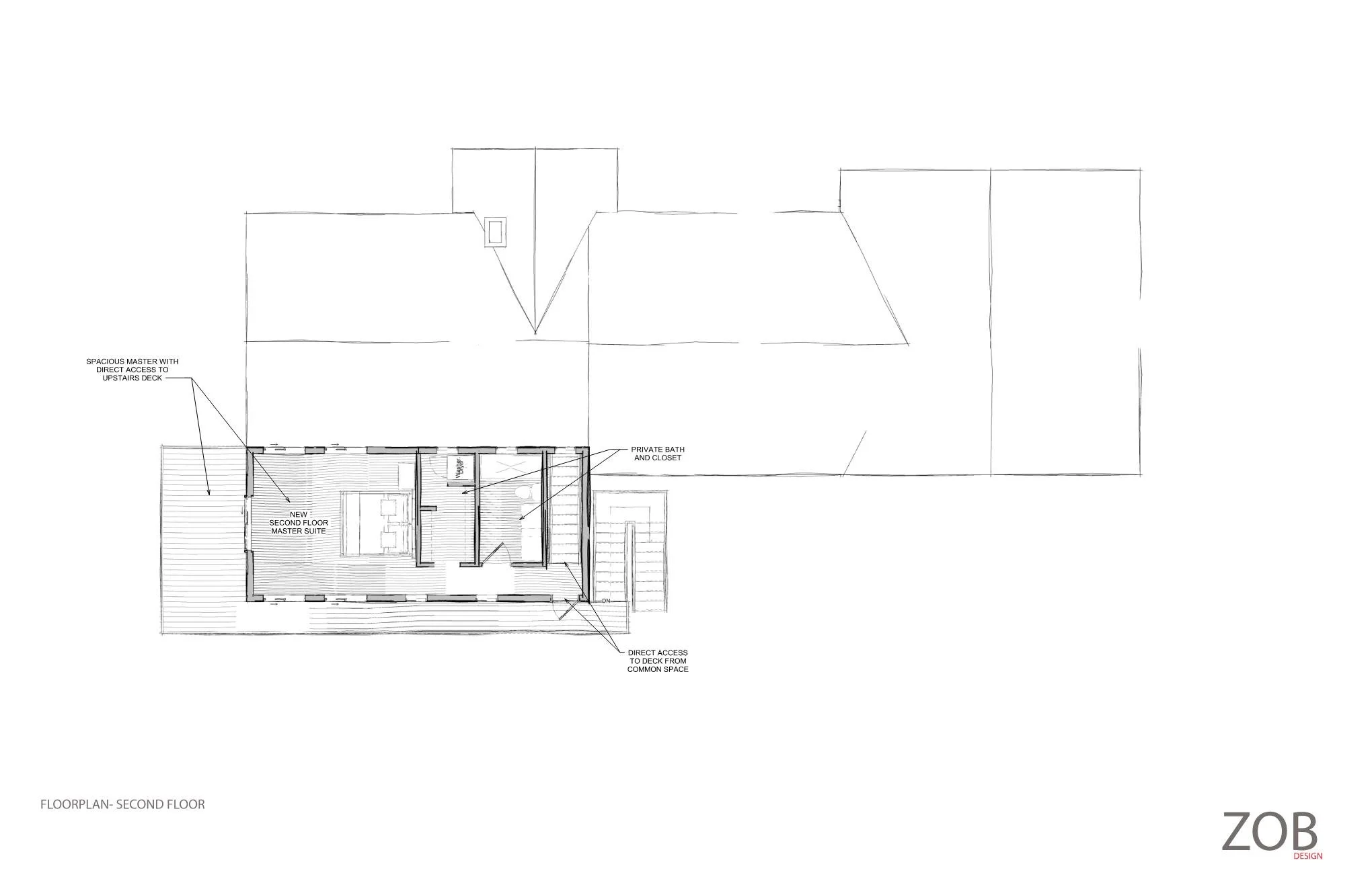
Full interior gut remodel & second story addition
Goal: Increase the space and capacity of this coastal ranch home to create a modern, family-friendly environment that is perfect for vacation getaways and retirement dreams.
In partnership with Froelich Engineers